|
產品名稱:ZGB-II不銹鋼抽屜式阻火器
產品型號:ZGB-II
產品口徑:DN50~DN500
產品壓力:1.6MPa~4.0MPa
產品材質:碳鋼、不銹鋼
產品口徑:DN50~DN500
產品壓力:1.6MPa~4.0MPa
產品材質:碳鋼、不銹鋼
產品名稱:不銹鋼抽屜式阻火器 產品型號:ZGB-II 公稱通徑:DN50~DN500功能作用:阻火公稱壓力:1.6MPa~4.0MPa連接方式:法蘭適用溫度:-80ºC~+350º
產品說明ZGB-II不銹鋼抽屜式阻火器是用于安裝原油、汽油、煤油、柴油、芳烴、硫等各類油品或其它化工物料的固定頂式儲罐上,通常與呼吸閥配套使用,其主要功能是允許易燃易爆的氣體通過,對外界傳入儲罐的火焰起有阻止與窒息作用。抽式阻火器可以與通氣管配套或單獨使用,其它規格產品可按用戶要求提供。產品特點1、阻爆性能合格,連續13次阻爆性能試驗每次均能阻火。2、耐燒性能合格,耐燒試驗1小時無回火現象。 3、殼體水壓試驗合格。結構合理,重量輕、耐腐蝕。易檢修,安裝方便。阻火器芯子采用不銹鋼材料, 耐腐蝕易于清洗。 4、阻火器主要由殼體和濾芯兩部分組成。殼體應具有足夠的強度,以承受爆炸產生的沖擊壓力。 5、濾芯是阻止火焰傳播的主要構件,常用的有金屬網濾芯和波紋型濾芯兩種。 6、金屬網型濾芯用直徑0.23~0.315mm的不銹鋼或銅網,多層重疊組成。目前國內的阻火器通常采用16~22目金屬網,為4~12層。 執行標準設計規范:GB5908-86試驗與檢驗: GB1347-92 法蘭連接:JB/T79、GB9112~9131、HG20592、SH3406、ANSI B16.5 產品標識:GB/T 12220 供貨規范:JB/T 7928 性能參數
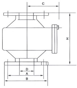
外形結構圖![]() 主要外形尺寸
保養與維修為了確保不銹鋼抽屜式阻火器的性能達到安全使用目的,對抽屜阻火器應定期檢查、保養。1、不銹鋼抽屜式阻火器每半年檢查一次,檢查阻火層芯子是否堵塞、變形、腐蝕等。 2、發現被堵塞的阻火層芯子應清洗干凈,確保芯子上的每個孔眼暢通,對于變形和腐蝕的阻火層應更換。 3、重新安裝阻火層芯子時,應保證結合面嚴密不得漏氣。
|
||||||||||||||||||||||||||||||||||||||||||||||||||||||||||||||||||||||||||||||||||||||||||||||||


關注官方微信