|
產品名稱:HX2,HXF2帶雙接管呼吸閥
產品型號:HX2、HXF2
產品口徑:DN40~DN250
產品壓力:1.6MPa~2.5MPa
產品材質:鑄鋼、不銹鋼
產品口徑:DN40~DN250
產品壓力:1.6MPa~2.5MPa
產品材質:鑄鋼、不銹鋼
產品名稱:帶雙接管呼吸閥 產品型號:HX2、HXF2 公稱通徑:DN40~DN250結構形式:雙接管公稱壓力:1.6MPa~2.5MPa連接方式:法蘭適用溫度:-28ºC~+60º
產品說明HX2、HXF2帶雙接管呼吸閥是維護儲罐氣壓平衡,減少介質揮發的安全節能產品。帶雙接管呼吸閥是原油、汽油、煤油、輕柴油、芳烴等固定頂式儲罐上不可缺少的主要安全設備,能起到防止蒸發損耗與保護儲罐在受超壓或真空時免遭破壞的作用。產品規范根據國家標準《石油化工企業設計防火規范》(GB50160-92)之規定:“儲存甲、乙類液體的固定式頂罐,應設阻火器和呼吸閥”。呼吸閥的品種很多,各有其不同的性能和特性,在選擇時就要按照其特性所滿足的條件,是否能達到最佳的運行效果,再多方面考慮一些客觀的因素即可。帶雙接管呼吸閥就是其中一個受市場歡迎的產品,帶雙接管呼吸閥在系統中起安全保護作用。在實際應用時,應根據實際需要選擇其特性類型,并根據最大排氣量選擇其通徑為最佳方案。帶雙接管(阻火)呼吸閥是新型改進型呼吸閥,集合呼吸閥與儲罐阻火器的雙重作用。產品作用HX2、HXF2帶雙接管呼吸閥是安裝在固定頂罐上的通風及阻火裝置,能起到能起到減少油品蒸發損耗,控制儲罐壓力平衡和控制火焰的作用。呼吸閥內設有靜電保護裝置,使得該閥時刻與罐體保持同等電位。帶雙接管(阻火)呼吸閥也適用于可回收氣體儲罐,如有氮氣封頂儲罐,它可直接從氮氣罐內吸入氮氣,也可接儲罐內的廢氮回收,真正做到了高效、節能、環保。帶雙接管(阻火)呼吸閥還具備對儲罐內外壓力進行自動調節的作用,該閥可代替氮封裝置。產品特點HX2、HXF2帶雙接管呼吸閥閥盤采用四氟材料,耐低溫,防凍性能好;阻火盤采用不銹鋼材質,阻火性能優良。殼體選用不銹鋼、鑄鋼和鋁合金,結構緊湊,阻火性能強、通氣量大、泄漏量小、耐腐蝕、耐低溫、防霜凍、易檢修,安全方便等特點。主要零部件
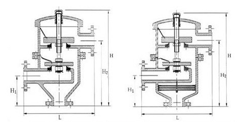
外形結構圖![]() 主要外形尺寸
安裝維護1、帶雙接管呼吸閥安裝在儲油罐的最高點,以便降低物料的蒸發損耗和維持儲罐內外的氣壓平衡。一般立式油罐,呼吸閥安裝于油罐頂板中央范圍內;對于罐頂需要設隔熱層的儲罐,呼吸閥可安裝在梯子平臺附近。2、帶雙接管呼吸閥出廠時,法蘭密封面采用塑料保護蓋,以免運輸途中造成法蘭密封面受損,貨到現場安裝時,務必要把法蘭保護蓋取掉,再垂直安裝于儲罐罐頂部。呼吸閥不可橫放和倒置,若儲罐頂部需要安裝兩個呼吸閥時,呼吸閥與罐頂中心應該對稱安裝。 3、帶雙接管呼吸閥安裝于儲罐上一般使用1-3個月,需要定期檢查呼吸閥正負壓閥盤工作是否靈活,呼吸閥在正常工作時,會發出“吸-吸-吸”的泄壓排氣的聲音,否則,需要將呼吸閥頂部的閥蓋打開,檢查呼吸閥的閥盤是否出現“卡盤”現象。導桿上是否有污垢,若有及時清理干凈污垢,保證導桿運行自如。閥座密封面有無磨損,如有磨損需立即更換,以保證呼吸閥的正常安全運行。 4、帶雙接管呼吸閥的正負壓閥盤是根據罐內的壓力的升降而不斷變化,上下運動。當呼吸閥使用三年時間后,一般都需要更換呼吸閥內部的閥盤,導桿以及閥座的密封面,以保證呼吸閥正常工作,維持儲罐的安全運行。
|


關注官方微信