|
產品名稱:GYA液壓安全閥
產品型號:GYA
產品口徑:DN80~DN250
產品壓力:1.0MPa~1.6MPa
產品材質:鑄鋼、不銹鋼
產品口徑:DN80~DN250
產品壓力:1.0MPa~1.6MPa
產品材質:鑄鋼、不銹鋼
產品名稱:液壓安全閥 產品型號:GYA 公稱通徑:DN80~DN250結構形式:活瓣式公稱壓力:1.0MPa~1.6MPa連接方式:法蘭適用溫度:-40ºC~+80ºC驅動方式:自
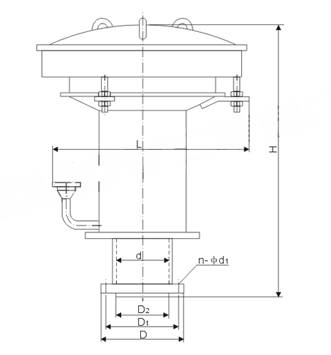
產品說明GYA液壓安全閥是裝設在油罐頂上,保護油罐安全的一個重要附件。當機械呼吸閥發生故障時,液壓安全閥就能代替機械呼吸閥進行排氣或放氣。產品作用GYA液壓安全閥一種安全保護用閥,它的啟閉件受外力作用下處于常閉狀態,當設備或管道內的介質壓力升高,超過規定值時自動開啟,通過向系統外排放介質來防止管道或設備內介質壓力超過規定數值。安全閥屬于自動閥類,主要用于鍋爐、壓力容器和管道上,控制壓力不超過規定值,對人身安全和設備運行起重要保護作用。外形結構圖![]() 主要外形尺寸
產品用途1、液壓安全閥是(活瓣式)呼吸閥的安全備用設備,它的吸氣和呼氣的動作壓力略高于(活瓣式)呼吸閥,在呼吸閥一旦失靈或在冬季其活瓣凍結時,液壓安全閥的液封即被破壞從而保護油罐免遭破壞。2、液壓安全閥裝于油罐頂部與呼吸閥配合使用。 3、控制壓力:+56毫米水柱至-50毫米水柱。 安裝說明(l)額定蒸發量大于0.5t/h的鍋爐,至少裝設兩個安全閥:額定蒸發量小于或等于0.5t/h的鍋爐,至少裝一個安全閥。可分式省煤器出口處、蒸汽過熱器出口處都必須裝設安全閥。 (2)安全閥應垂直安裝在鍋商、集箱的最高位置。在安全閥和鍋筒或集箱之間,不得裝有取用蒸汽的出口管和閥門。 (3)杠桿式安全閥要有防止重錘自行移動的裝置和限制杠桿越軌的導架,彈簧式安全閥要有提升手把和防止隨便擰動調整螺釘的裝置。 (4)對于額定蒸汽壓力小于或等于3.82MPa的鍋爐,安全閥喉徑不應小于25mm:對于額定蒸汽壓力大于3.82MPa的鍋爐,安全閥喉徑不應小于20mm。 (5)安全閥與鍋爐的連接管,其截面積應不小于安全閥的進口截面積。如果幾個安全閥共同裝設在一根與鍋筒直接相連的短管上,短管的通路截面積應不步于所有安全閥排汽面積的1.25倍。 (6)安全閥一般應裝設排汽管,排汽管應直通安全地點,并有足夠的截面積,保證排汽暢通。安全閥排氣管底部應裝腔 作勢有接到安全地點的疏水管,在排氣管和疏水管上都不允許裝設閥門。 注意事項一、各種安全閥都應垂直安裝。二、安全閥出口處應無阻力,避免產生受壓現象。 三、安全閥在安裝前應專門測試,并檢查其官密封性。 四、對使用中的安全閥應作定期檢查。
|
||||||||||||||||||||||||||||||||||||||||||||||||||||||||||||||||||||||||||||||||||||||||||||


關注官方微信