|
產品名稱:GJ6K41X常開型氣動管夾閥
產品型號:GJ6K41X
產品口徑:DN25~DN300
產品壓力:
產品材質:鑄鐵、鋁合金、不銹鋼
產品口徑:DN25~DN300
產品壓力:
產品材質:鑄鐵、鋁合金、不銹鋼
產品名稱:常開型氣動管夾閥 產品型號:GJ6K41X 公稱通徑:DN25~DN300結構形式:管夾式工作壓力:1.0MPa連接方式:法蘭適用溫度:-15ºC~+85ºC驅動方式:手
產品說明GJ6K41X常開型氣動管夾閥可為常開型、常閉型,又名氣動夾管閥,氣動膠管閥由上下鑄鐵、鋁合金、不銹鋼閥體,橡膠管套、大小閥桿閘板、上下導柱等零件組成。當順轉手輪時,使大小閥桿同時帶動上下茬板、壓縮管套、進行關閉,反之即行開啟。這樣,閘板在導柱之間上下往復完成閥門開閉工作,另因橡膠管套或承力小,所以在開閉時,操作人員旋轉輪時只要感到適量抵觸,均達到開閉極點。切勿盡力多人補助,禁用其他工具開閉。性能規范
主要零件材料
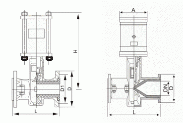
外形結構圖![]() 主要外形尺寸
|


關注官方微信